
| hirdetés azonosítója: | 132429 | |
| jelleg: | Eladó | |
| ingatlan típusa: | Téglalakás | |
| irányár: | 76 500 000 Ft | |
| megye: | Somogy | még több Somogy megyei hirdetés |
| település: | Siófok | még több Siófok |
| telek terület: | 500 m² | |
| hasznos alapterület: | 51 m² | |
| áramellátás: | Bevezetve (230 Volt) | |
| vízellátás: | Van, saját vízórával | |
| csatornázottség: | Közműhálózatba bekötve | |
| építés módja: | Tégla | |
| komfort fokozat: | Összkomfort | |
| kilátás: | Utcára | |
| fűtés típusa: | Hőszivattyú | |
| építés éve: | 2026 | |
| emelet: | 1 | |
| állapot: | Új építésű | |
| külső állapot: | Hőszigetelt | |
| szobák száma: | 2 | |
| parkolási lehetőség: | Teremgarázsban | |
| klíma: | Saját split klíma | |
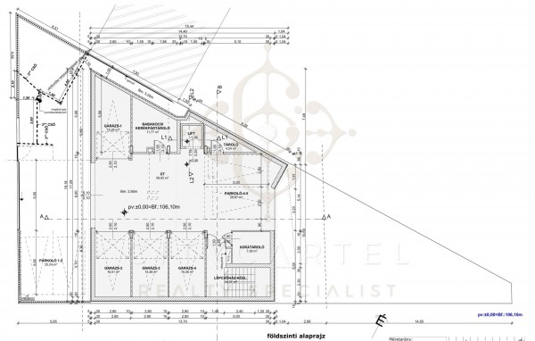
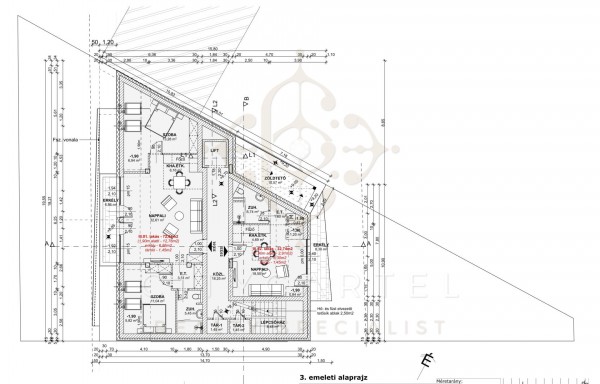
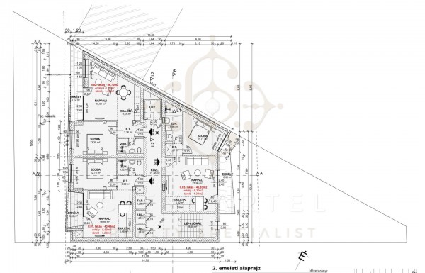
| bővebb leírás: | Modern, liftes társasházi lakások Siófok belvárosában 2027-es átadással !! A CITY CARTEL BALATON KÍNÁLATÁBAN: Siófokon a belváros szívében, a parttól mindössze 600 méterre kínálunk eladásra egy 2026-ban épülő modern, minimalista stílusú, liftes társasházban található 1. emeleti téglalakást. A ház 30-as Leier téglából készül és 20 cm-es szigetelést kap. Hideg és meleg burkolatok 8.000 Ft-ig egyedileg választhatók, ugyanúgy mint a beltéri ajtók is 120.000 Ft-ig. A nyílászárók kívül színes, belül fehér színt kapnak. Riasztó és kamerarendszer is szolgálja a társasház biztonságérzetét. A ház energetikai besorolása A+ lesz. A 46 m²-es, nyugati tájolású otthonhoz egy 8 m²-es erkély is tartozik, amely ideális helyszín a nyugodt délutánokhoz. A belső tér amerikai konyhás nappaliból és egy hálószobából áll, így kiválóan alkalmas állandó otthonnak, nyaralónak vagy akár bérbeadásra is. A lakás külön mérőórákkal, hőszivattyús padlófűtéssel, klímával, valamint távolról írányitható elektromos redőnyökkel felszerelt. A parkolásról fedett gépkocsibeálló gondoskodik, mely kötelezően megvásárolandó 8.000.000 Ft-ért, továbbá 1.5 nm-es tároló 2.000.000 Ft áron .A házhoz tartozik nyitott felszíni zárt parkoló 4.000.000 Ft -ért. Az első szerzödők ajándék tárolót kapnak és kedvezményesen tudják megvásárolni a parkolót is. Ez a modern, igényes lakás tökéletes választás mindazok számára, akik a városi kényelem és a Balaton közelségének tökéletes harmóniáját keresik – akár saját otthonnak, akár befektetésnek. Az építkezés 2026. januárjában kezdődik, a várható átadás 2027. tavasza. Irodáink: 8600 Siófok, Fő tér 6. (Sió Pláza -1. szint) 8640 Fonyód, Ady Endre u. 5. (Balaton Áruház földszint) 8638 Balatonlelle, Rákóczi út 276. Kövess minket Facebook-on is: @citycartelbalaton! |
|
| helységek: | ||
| kapcsolat: | Takács Zsolt | |
| telefonszám: | +36 70 778-2122 | |
| e-mail cím: | uh.letracytic@tlosz.scakat | |
| ingatlan iroda: | City Cartel, Siófok | Az iroda további hirdetései |
| iroda címe: | 8600 Siófok, Fő tér 6. (Sió Pláza -1 szint) | |
| telefonszám: | +36 70 778-2119 | |
| fax: | ||
| e-mail cím: | uh.letracytic@notalab | |
| weboldal: | siofok.citycartel.hu |