
| hirdetés azonosítója: | 132336 | |
| jelleg: | Eladó | |
| ingatlan típusa: | Téglalakás | |
| irányár: | 89 900 000 Ft | |
| megye: | Budapest | még több Budapest megyei hirdetés |
| település: | Budapest, VI. kerület | még több Budapest, VI. kerület |
| hasznos alapterület: | 51 m² | |
| áramellátás: | Bevezetve (230 Volt) | |
| vízellátás: | Van, saját vízórával | |
| csatornázottség: | Közműhálózatba bekötve | |
| gázellátás: | Vezetékes gáz | |
| építés módja: | Tégla | |
| komfort fokozat: | Luxus | |
| kilátás: | Udvari | |
| fűtés típusa: | Gázkazán | |
| emelet: | Földszint | |
| állapot: | Luxus | |
| külső állapot: | Kiváló | |
| közös költség: | 16167 Ft/hó | |
| szobák száma: | 2 | |
| parkolási lehetőség: | Teremgarázsban | |
| klíma: | Saját split klíma | |
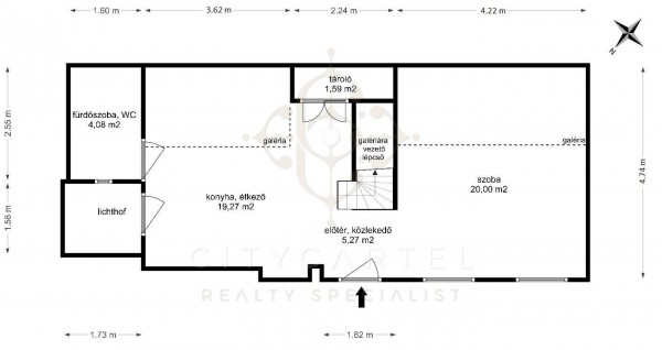
| bővebb leírás: | C I T Y C Λ R T E L INTERNATIONAL LUXURY REAL ESTATE AGENCY bemutatja: Eladásra kínálunk egy igazi különlegességet Budapest leghíresebb sugárútján, a magyar Champs-Élysées-kéntemlegetett Andrássy úton, közvetlenül a Cseh Nagykövetség szomszédságában. Ez a tulajdoni lapon 51 nm-es, valójában 18 nm galériával és 4 nm saját lichthoffal kiegészülő, összesen 73 m² hasznos alapterületű magasföldszinti lakás a történelem eleganciáját ötvözi a kortárs luxussal. Történelmi hangulat – modern technológia A lakás 2017-ben teljes körű felújításon esett át, lakberendező közreműködésével, prémium anyagok és harmonikus enteriőrtervezés mentén. A felújítás során új gépészet, modern vezeték- és fűtésrendszer, valamint padlófűtés és kondenzációs gázkazán került beépítésre. A külső nyílászárók hőszigetelő üvegezést kaptak, a beépített bútorok egyedileg készültek. A falakat 19. századi Andrássy úti látképek díszítik, az étkező lámpatartója és a lépcső korlátja pedig eredeti, restaurált darabok – a ház történetének stílusában újragondolva. Gondosan megtervezett terek A bejáraton belépve egy tágas, légies tér fogad: balra a konyha és étkező, jobbra a nappali és a dolgozósarok kapott helyet. A nappaliban térdfallal leválasztott munkaterület is kialakításra került, a lépcső alatt pedig praktikus tárolóktalálhatók. A fürdőszoba zuhanyzós, egy légtérben a WC-vel, míg a háztartási helyiség mosó- és szárítógéppel felszerelt. A lakáshoz tartozik egy 4 nm-es, kizárólagos használatú lichthof, amely intim, hangulatos, megvilágított kiülőkéntfunkcionál – egy csendes, privát menedék a belváros közepén. Galéria – funkció és stílus tökéletes harmóniája A nagy belmagasság lehetővé tette egy 18 nm-es galéria kialakítását, amely két külön funkcionális részből áll: a nappali felett egy kb. 9 nm-es zárható hálószoba, radiátoros fűtéssel és franciaerkélyes kilátással a nappalira, a konyha felett egy nyitott, üvegkorlátos galéria, vendégággyal és beépített gardróbbal. A teljes konyha gépesített: sütő, indukciós főzőlap, mosogatógép, hűtő-fagyasztó, valamint riasztórendszer és hűtő-fűtő klíma is beépítésre került. Befektetésként is ideális választás A lakás kifogástalan műszaki és esztétikai állapotban van, jelenleg is megbízható bérlő lakja havi 420 000 Ft bérleti díj mellett. A per- és tehermentes ingatlan azonnal birtokba vehető. Ha Ön is részese szeretne lenni az Andrássy út történelmi eleganciájának ez a lakás ideális választás. A stílus, a lokáció és az értékállóság itt valóban kézzel fogható. Foglaljon időpontot személyes megtekintésre! Ára: 89.900.000 Ft. DR. BOZÓ JÁZON Értékesítési munkatárs Luxury Specialist +36 30 815 2517 b.jazon@citycartel.hu CITY CARTEL BUDA KFT. CITY CARTEL FRANCHISE HUNGARY KFT. 1118 BUDAPEST, HEGYALJA ÚT 54. 1026 BUDAPEST, SZILÁGYI ERZSÉBET FASOR 121. BUDAGYÖNGYE BEVÁSÁRLÓKÖZPONT |
|
| helységek: | ||
| kapcsolat: | dr. Bozó Jázon | |
| telefonszám: | +36 30 815-2517 | |
| e-mail cím: | uh.letracytic@nozaj.b | |
| ingatlan iroda: | CITY CARTEL BUDAPEST ÉS AGGLOMERÁCIÓ | Az iroda további hirdetései |
| iroda címe: | 1118 Budapest, Hegyalja út 54. | |
| telefonszám: | +36 13 651-450 | |
| fax: | ||
| e-mail cím: | uh.letracytic@adub | |
| weboldal: | www.citycartel.hu |