
| hirdetés azonosítója: | 132115 | |
| jelleg: | Eladó | |
| ingatlan típusa: | Ikerház | |
| irányár: | 111 500 000 Ft | |
| megye: | Pest | még több Pest megyei hirdetés |
| település: | Vácrátót | még több Vácrátót |
| telek terület: | 363 m² | |
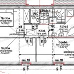
| hasznos alapterület: | 88 m² | |
| szobák száma: | 4 | |
| bővebb leírás: | ÚJ ÉPÍTÉSŰ IKERHÁZ eladó Vácrátóton a lakóparkban a természethez közel! A FÖLDSZINTES ikerház több méretben, amerikai konyhás nappali+3 vagy 4 hálószoba, fürdőszoba, háztartási helyiség, kamra, előszoba, külön mellékhelyiséggel épül meg. A ház a mai energetikai elvárásoknak megfelelően épül: hőszivattyús fűtésrendszer padlófűtéssel mindenhol, Burkolatok, szaniterek, belső ajtók igény szerint választhatók. Redőny előkészítés, elektromos kiállással, napelem előkészítés az árban. H taifás villany óra szintén a vételárban. Pakolható terhelhető betonfödém. Referenciákkal rendelkező, nagy múltú kivitelezőtől! CSALÁDI OTTHONTEREMTÉSI KEDVEZMÉNY (CSOK) és az ILLETÉKKEDVEZMÉNYEK igénybe vehetők, hitelügyintézésben díjtalanul segítséget nyújtunk. Megtekinthető telefonos időpont-egyeztetés alapján: Czirják Mihály 20/220-9995 |
|
| helységek: | ||
| kapcsolat: | Lovack Tamás | |
| telefonszám: | +36 20 559-3395 | |
| e-mail cím: | uh.zahizsekanud@samatkcavol | |
| ingatlan iroda: | Dunakeszi Ingatlanközpont | Az iroda további hirdetései |
| iroda címe: | 2120 Dunakeszi, Fő út 69. | |
| telefonszám: | +36 20 220-9995 | |
| fax: | ||
| e-mail cím: | uh.zahizsekanud@ofni | |
| weboldal: | www.dunakeszihaz.hu |