
| hirdetés azonosítója: | 131590 | |
| jelleg: | Eladó | |
| ingatlan típusa: | Ikerház | |
| irányár: | 92 000 000 Ft | |
| megye: | Pest | még több Pest megyei hirdetés |
| település: | Vácrátót | még több Vácrátót |
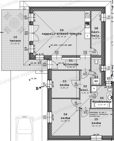
| telek terület: | 350 m² | |
| hasznos alapterület: | 85 m² | |
| szobák száma: | 4 | |
| bővebb leírás: | Vácrátóton 85 nm-es ÚJ ÉPÍTÉSŰ ikerház eladó. A földszintes házban amerikai konyhás nappali+3 hálószoba, fürdőszoba, külön mellékhelyiség kerül kialakításra. A nappaliból egy 20 nm-es terasz nyílik. Parkolás autóbeállón megoldott. A fűtésről hőszivattyú gondoskodik padlófűtéssel. Nyílászárók műanyag, 3 rétegű hőszigetelt üvegezésűek. Külső szigetelés 15 cm-es. Szaniterek, burkolatok, belső ajtók igény szerint választhatók. Referenciákkal rendelkező, megbízható kivitelezőtől. Megtekinthető telefonos időpont-egyeztetés alapján: Czirják Mihály 20/220-9995 |
|
| helységek: | ||
| kapcsolat: | Lovack Tamás | |
| telefonszám: | +36 20 559-3395 | |
| e-mail cím: | uh.zahizsekanud@samatkcavol | |
| ingatlan iroda: | Dunakeszi Ingatlanközpont | Az iroda további hirdetései |
| iroda címe: | 2120 Dunakeszi, Fő út 69. | |
| telefonszám: | +36 20 220-9995 | |
| fax: | ||
| e-mail cím: | uh.zahizsekanud@ofni | |
| weboldal: | www.dunakeszihaz.hu |