
| hirdetés azonosítója: | 129350 | |
| jelleg: | Eladó | |
| ingatlan típusa: | Iroda irodaházban A | |
| irányár: | 174 900 000 Ft | |
| megye: | Budapest | még több Budapest megyei hirdetés |
| település: | Budapest, XIV. kerület | még több Budapest, XIV. kerület |
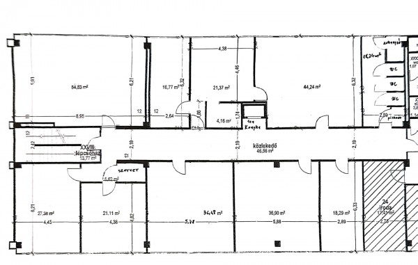
| hasznos alapterület: | 484 m² | |
| áramellátás: | Bevezetve (230 - 400 Volt) | |
| vízellátás: | Van, saját vízórával | |
| csatornázottség: | Közműhálózatba bekötve | |
| gázellátás: | Vezetékes gáz | |
| építés módja: | Tégla | |
| komfort fokozat: | Összkomfort | |
| kilátás: | Vegyes | |
| fűtés típusa: | Kondenzációs kazán | |
| emelet: | 2 | |
| állapot: | Felújított | |
| külső állapot: | Jó | |
| közös költség: | 200000 Ft/hó | |
| szobák száma: | 9 | |
| parkolási lehetőség: | Beállón | |
| klíma: | Saját split klíma | |
| bővebb leírás: | Eladó Budapesten a XIV.kerületben egy 2emeleti, 484nm-es iroda, mely egy irodaházban található.(közel az m3-as autópályához és a Csáktornya park trolimegállóhoz) Ez az iroda tökéletes választás informatikai cégeknek! Az irodaház 24 órás portaszolgálattal és őrzéssel rendelkezik. Biztonsági kamerákkal megfigyelve. Liftes, jól karbantartott. Az iroda teljeskörű felújításon esett át. Kondenzációs gázkazánnal rendelkezik, wifis termosztát minden helységben és a radiátorok hőleadása a thermofejeknek köszönhetően egyenként is állítható. Minden helység kilimatizált. Led világítás, gigabit sebességű struktúrált hálózat, 6-14 végpont irodánként melyek a szerverszobában Patch panelen végződnek. A padló ESD műanyag padló mely antistatikus. A szerverszobában külömböző internetszolgáltatók optikai csatlakozási pontjai megtalálhatóak. Itt található még a Paradox riasztóköpont is (ablaknyitás, füst és mozgásérzékelők, infra sorompók), Továbbiakban a 2M digitáliskamerák rögzítőegysége (NVR) is itt kapott helyet, amik a folyosókat, bejáratot, külső parkolót (2db) és a tárolókat (3db) figyeli. A bejárati ajtóknál számkód és ujjlenyomat fogadására is alkalmas belébeptetőren került kiépítésre. Az ingatlanban 10 irodahelység, étkezős konyha és mellékhelység kapott helyet (ahol 3db wc+ piszoár, zuhanyzó és öltözőszekrények vannak). Az iroda belső hőszigetelést, új műanyag nyílászárókat és bejárati ajtókat is kapott. Tartozik az ingatlanhoz még 4db saját tulajdonú parokoló az irodaház oldalában és további 20db közterületen található parkoló az irodaház előtt. A vételár tartalmazza az irodabútorokat és szekrényeket is. Az ingatlan tehermentes és azonnal birotokba vehető! Nagyszerű ár/érték arány, ne maradjon le róla! Hívjon és már mutatom is! |
|
| helységek: | ||
| kapcsolat: | Berkes Beáta | |
| telefonszám: | +36 20 239-2031 | |
| e-mail cím: | moc.liamg@ataebsekreb | |
| ingatlan iroda: | B2 Ingatlan | Az iroda további hirdetései |
| iroda címe: | 1135. Budapest, Ambrus utca 6 | |
| telefonszám: | +36 20 239-2031 | |
| fax: | ||
| e-mail cím: | uh.naltagni2b@ataeb.sekreb | |
| weboldal: | www.b2ingatlan.hu |