
| hirdetés azonosítója: | 121170 | |
| jelleg: | Eladó | |
| ingatlan típusa: | Családi ház | |
| irányár: | 99 900 000 Ft | |
| megye: | Bács-Kiskun | még több Bács-Kiskun megyei hirdetés |
| település: | Kecskemét | még több Kecskemét |
| telek terület: | 667 m² | |
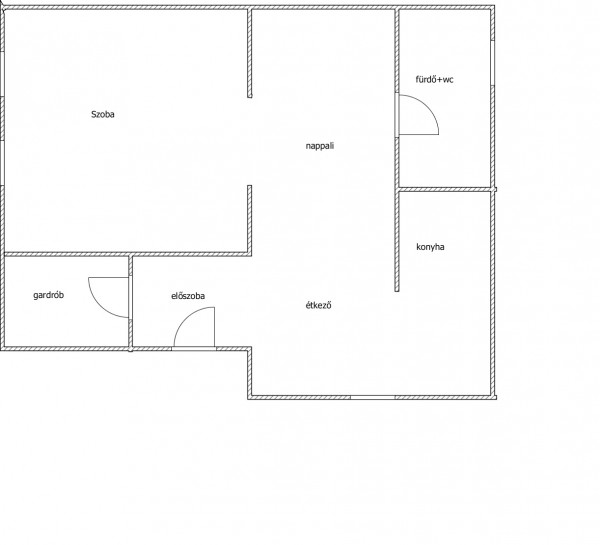
| hasznos alapterület: | 140 m² | |
| építés módja: | Tégla | |
| állapot: | Felújított | |
| szobák száma: | 6 | |
| bővebb leírás: | Kecskemét belváros szélén 140nm hatszobás családi ház eladó. 667 nm parkosított telken, kétszintes, két konyhás, két fürdőszobás ház + egy 38nm faház. A felső szint külön bejáratú, de az épületen belűli lépcső is megvan. Az elmúlt években több fázisban felújításon esett keresztül. Falátvágással szigetelőréteg került az alap és a fal közé, aztán nyílászárócsere és homlokzati szigetelés, mad a belső burkolat következett. Két generáció együttélésére is alkalmas, de nagycsaládosoknak is kiváló lehet! A főtér kb.8 perc séta! Van kérdése? Nézzük meg együtt! |
|
| helységek: | ||
| kapcsolat: | Hizsnyik Anna | |
| telefonszám: | +36 30 959-1694 | |
| e-mail cím: | uh.urugnaltagniza@ina | |
| ingatlan iroda: | IngatlanGuru | Az iroda további hirdetései |
| iroda címe: | 6000 Kecskemét, Március 15 út 12-16 | |
| telefonszám: | +36 76 742-743 | |
| fax: | ||
| e-mail cím: | uh.urugnaltagniza@ofni | |
| weboldal: | azingatlanguru.hu |