
| hirdetés azonosítója: | 115879 | |
| jelleg: | Eladó | |
| ingatlan típusa: | Telephely | |
| irányár: | 79 900 000 Ft | |
| megye: | Pest | még több Pest megyei hirdetés |
| település: | Kocsér | még több Kocsér |
| telek terület: | 3888 m² | |
| hasznos alapterület: | 280 m² | |
| áramellátás: | Bevezetve (230 - 400 Volt) | |
| vízellátás: | Van, saját vízórával | |
| gázellátás: | Gázvezeték a telek előtt | |
| építés éve: | 2016 | |
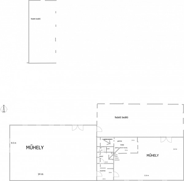
| bővebb leírás: | Kecskemét 30 km-es vonzás körzetében Kocséron vált Eladóvá belterületi telephely, műhellyel és további tárolókkal. A 3db helyrajzi számon elhelyezkedő terület teljesen körbekerített, kamera és riasztórendszerrel felszerelt , saját trafóházzal rendelkezik. A terület nagysága további beépíthetőséggel bír. A településen könnyen megközelíthető. Műhely jellemzői : -2016-ban épült. -Áramellátása 3 x 40 Amper , ami bővíthető. Az összesen 280 m2-es épületben található a 74 m2 területű fűtött műhely + a szociális helyiségekkel , az irodával ami a galériás részen van . Továbbá fűtéssel nem rendelkező műhely 130 m2 nagyságú + 106 m2 fedett beálló az épülethez kapcsolódóan. A területen további fedett beálló, tároló, ami 360 m2. Csatornahálózat a településen a közel jövőben kerül kiépítésre. Az épülő M8-As közelsége, a település infrastruktúrája teszi vonzóvá a letelepedést és vállalkozást. A rendezett, csendes település fejlődése folyamatos, Nagykőrös elérhetősége 11 km, ami felújítás alatt álló útszakaszról gépjárművel akár 8-10 perc alatt elérhető. Megtekintéshez hívjon bizalommal ! |
|
| helységek: | ||
| kapcsolat: | Kanizsai Gyuláné | |
| telefonszám: | +36 70 682-2124 | |
| e-mail cím: | uh.urugnaltagniza@okidli | |
| ingatlan iroda: | IngatlanGuru | Az iroda további hirdetései |
| iroda címe: | 6000 Kecskemét, Március 15 út 12-16 | |
| telefonszám: | +36 76 742-743 | |
| fax: | ||
| e-mail cím: | uh.urugnaltagniza@ofni | |
| weboldal: | azingatlanguru.hu |