
| hirdetés azonosítója: | 121352 | |
| jelleg: | Eladó | |
| ingatlan típusa: | Ikerház | |
| irányár: | 104 900 000 Ft | |
| megye: | Pest | még több Pest megyei hirdetés |
| település: | Göd | még több Göd |
| telek terület: | 550 m² | |
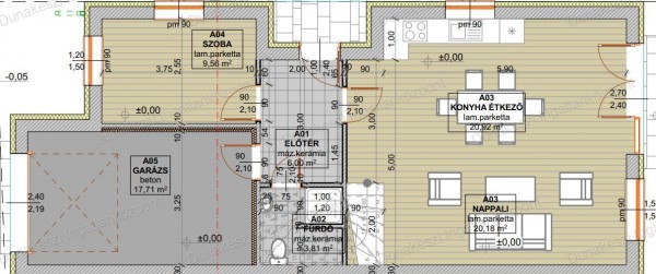
| hasznos alapterület: | 155 m² | |
| áramellátás: | Bevezetve (230 Volt) | |
| vízellátás: | Van, saját vízórával | |
| csatornázottség: | Közműhálózatba bekötve | |
| gázellátás: | Vezetékes gáz | |
| építés módja: | Tégla | |
| szobák száma: | 5 | |
| bővebb leírás: | GÖDÖN Nevelekben, csendes utcában található 1000 nm-es telken épülő 155 nm-es korszerű, ENERGIATAKARÉKOS FŰTÉSSEL rendelkező ikerházfél eladó. A tágas ikerház fűtése HŐSZIVATTYÚval történik, a hőleadás PADLÓFŰTÉSen keresztül megoldott. A ház építése jó műszaki tartalommal, kimagasló minőségben és nagyon sok extrával készül. A műszaki tartalomból: - Hőszivattyús fűtés + padlófűtés - Klímarendszer - Elektromos kapu + garázskapu - 15 cm-es homlokzati hőszigetelés - 3 rétegű ablakok - Viacolor járda és autóbeálló - Kamerarendszer, riasztó, kaputelefon - Szeletelt tégla dekor homlokzat Megbízható kivitelező, sok referenciával rendelkezik a környéken. Megtekinthető telefonos időpont-egyeztetés alapján: Lovack Tamás 20/559-3395 lovacktamas@dunakeszihaz.hu DUNAKESZI INGATLANKÖZPONT – www.dunakeszihaz.hu Dunakeszi és környéke legnagyobb ingatlan választéka (Dunakeszi, Fót, Göd, Sződliget) eladó-kiadó családi ház, telek, lakás! Teljes kínálat a logónkra kattintva érhető el. INGYENES HITELÜGYINTÉZÉS! Ingatlanépítés és -felújítás! |
|
| helységek: | ||
| kapcsolat: | Lovack Tamás | |
| telefonszám: | +36 20 559-3395 | |
| e-mail cím: | uh.zahizsekanud@samatkcavol | |
| ingatlan iroda: | Dunakeszi Ingatlanközpont | Az iroda további hirdetései |
| iroda címe: | 2120 Dunakeszi, Fő út 69. | |
| telefonszám: | +36 20 220-9995 | |
| fax: | ||
| e-mail cím: | uh.zahizsekanud@ofni | |
| weboldal: | www.dunakeszihaz.hu |