
| hirdetés azonosítója: | 130816 | |
| jelleg: | Eladó | |
| ingatlan típusa: | Családi ház | |
| irányár: | 16 000 000 Ft | |
| megye: | Nógrád | még több Nógrád megyei hirdetés |
| település: | Szanda | még több Szanda |
| telek terület: | 1019 m² | |
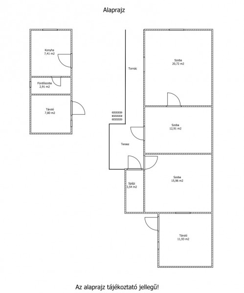
| hasznos alapterület: | 63 m² | |
| áramellátás: | Bevezetve (230 Volt) | |
| vízellátás: | Van, saját vízórával | |
| csatornázottség: | Derítő | |
| gázellátás: | Vezetékes gáz | |
| építés módja: | Vegyes | |
| komfort fokozat: | Komfort | |
| fűtés típusa: | Konvektor | |
| építés éve: | 1960 | |
| állapot: | Átlagos | |
| külső állapot: | Átlagos | |
| szobák száma: | 3 | |
| parkolási lehetőség: | Udvarban | |
| bővebb leírás: | Nógrád megye festői szépségű településén, Szanda fóútja mentén kínálunk megvételre egy 63 m2-es 3 szobás a tornácos házat. A z épület vegyes falazatú,fagerendás. Tető fa szerkezetű , cserép fedéssel. A nyílászárók fa szerkezetűek kétrétegű üvegezéssel.Az épület részben alápincézett.A fűtést gázkonvektorok,a melegvizet villanybojler szolgáltatja. A falak festettek ,padozat a szobákban PVC és hajópadló.Az épület folytatásaként tároló épült. Az 1019 m2-es rendezett telken egy különálló melléképület épült,itt található a konyha és a fürdőszoba. Kitűnő választás gazdálkodásra ,hétvégi pihenőháznak de turisztikai hasznosításra is. Irányár:16,0 MFt |
|
| helységek: | ||
| kapcsolat: | Rucska Lajos | |
| telefonszám: | +36 20 958-9094 | |
| e-mail cím: | moc.liamg@tfknilur | |
| ingatlan iroda: | RULIN Kft | Az iroda további hirdetései |
| iroda címe: | 2534 Tát Balassa | |
| telefonszám: | +36 20 958-9094 | |
| fax: | ||
| e-mail cím: | moc.tfknilur@ofni | |
| weboldal: | www.rulinkft.com |